Новый 4-этажный деловой центр расположен в центральной части города по адресу: ул. Аксенова, д. 2. Данное место характеризуется хорошей доступностью. Парковая зона, окружающая с трех сторон деловой центр, способствует созданию спокойной и комфортной рабочей атмосферы. Наличие большого прилегающего участка земли позволяет обустроить удобную наземную парковку.
Деловой центр будет обладать такими важными параметрами, как:
Зданию присвоен класс B+. Общая площадь составляет 4 000 кв. м., арендуемая — 3 000 кв. м.

Срок сдачи под чистую отделку назначен на 3 квартал 2008 года, ввод в эксплуатацию — на 4 квартал этого же года.
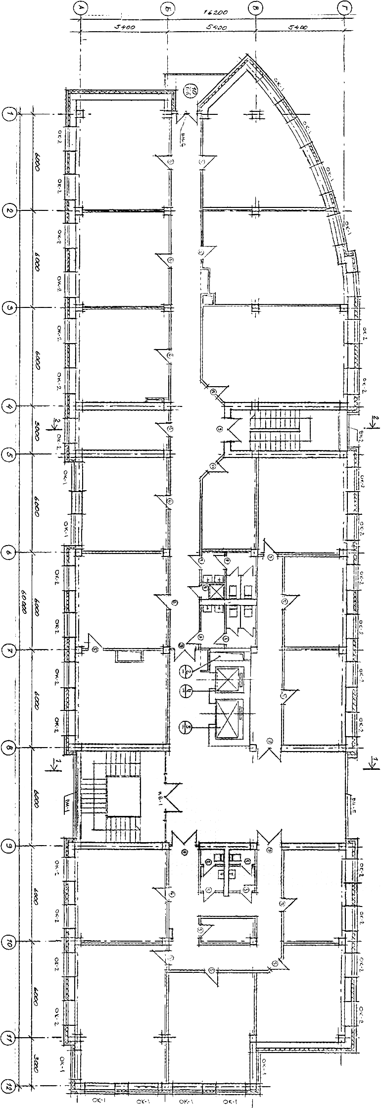
План типового этажа:
![]() |
![]() |